Dry Urine Diverting toilet building for summer camp base
6000 youngster will benefit each year; support by Fondation Ensemble
22.05.2006 |Anne Barre

Peredovoe is a small village (part of the Orlinoe village council, uniting 14 communities) in the Bayadarska Valley, which is a natural reserve. Crimea, this beautiful peninsula on the Black sea, has been a recreation area for over 100 years.
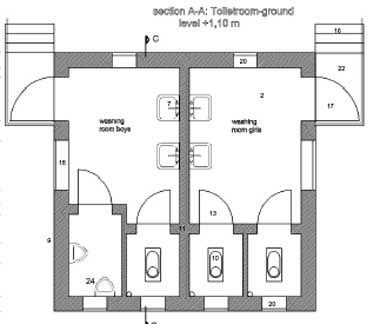
The summer camp of Peredovoe in a NGO volunteer center for school tourism: it welcomes some 6000 children every summer. The eco-san toilet building will provide the camp with hygienic and sustainable toilet facilities, and serve as a useful demonstration project.
The project started in September 2005 with technical design and planning and obtaining official authorizations from local authorities. After several consultations it was decided to build for the toilets a separate house, and not inside the new building of the educational center. The toilet house location has been chosen in accordance to rational use and specificities of the camp landscape.
Technical design and documentation have been developed with the help of our wastewater expert Stephan Deegener, from the Hamburg Technical University (TUUH). It was finalized end of January 2006. A tender for construction and the selection of the appropriate constructor was conducted in the same time, as well as field measurements. In February, MAMA-86-Sebastopol received the written approval from local authorities to build the eco-san toilets.
Materials could be purchased and delivered in March (see photos). The building works started on World Water day, March 23, with the basement of the building. Construction will be finished by mid-May.
Contact MAMA-86 Ukraine, Anna Tsvetkova: atsvet@mama-86.kiev.ua

































